top of page
Location
Antalya
Type
Office
Built Area
1.600 M²
Date
09/2021
Yalin Plaza
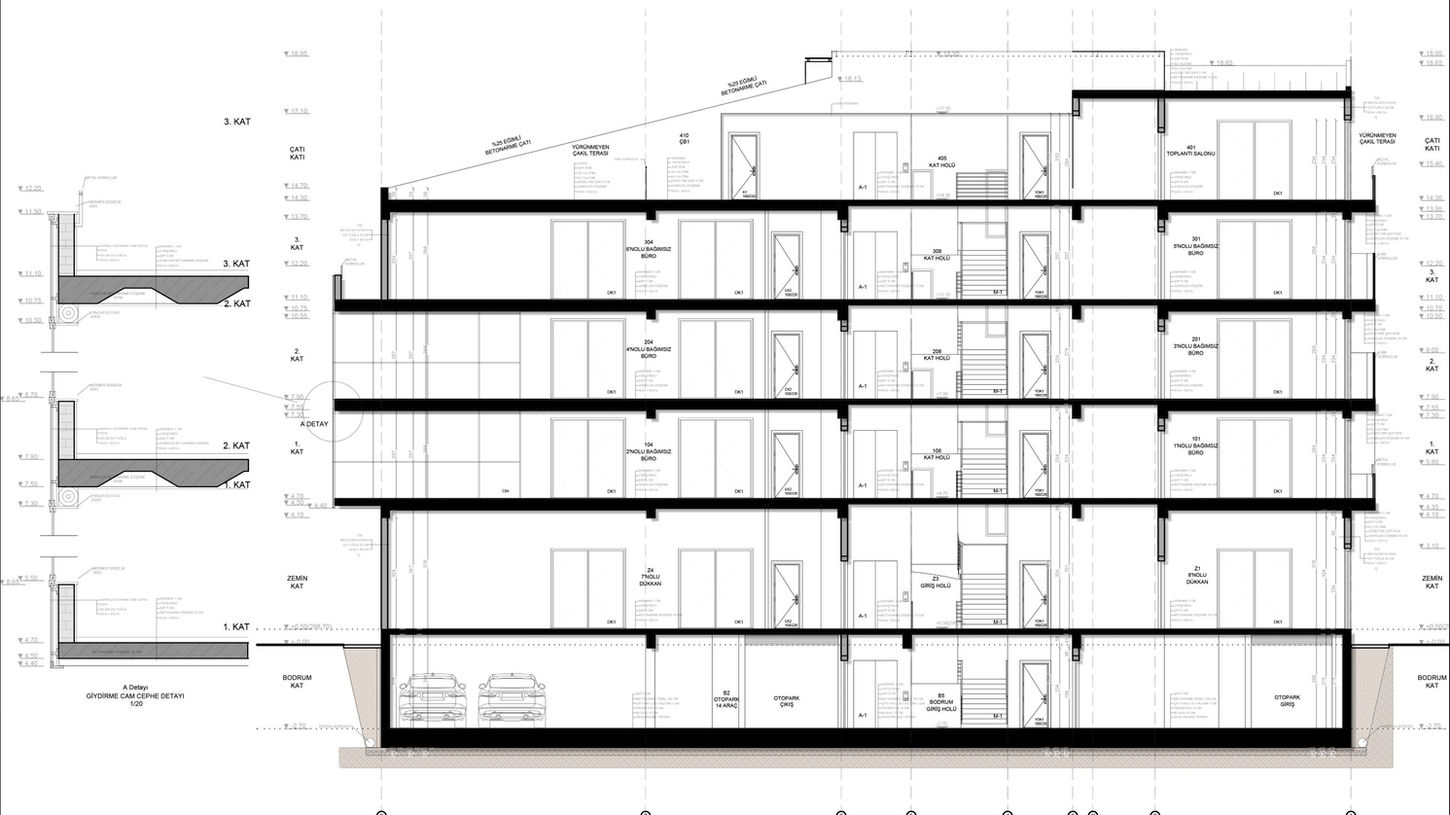
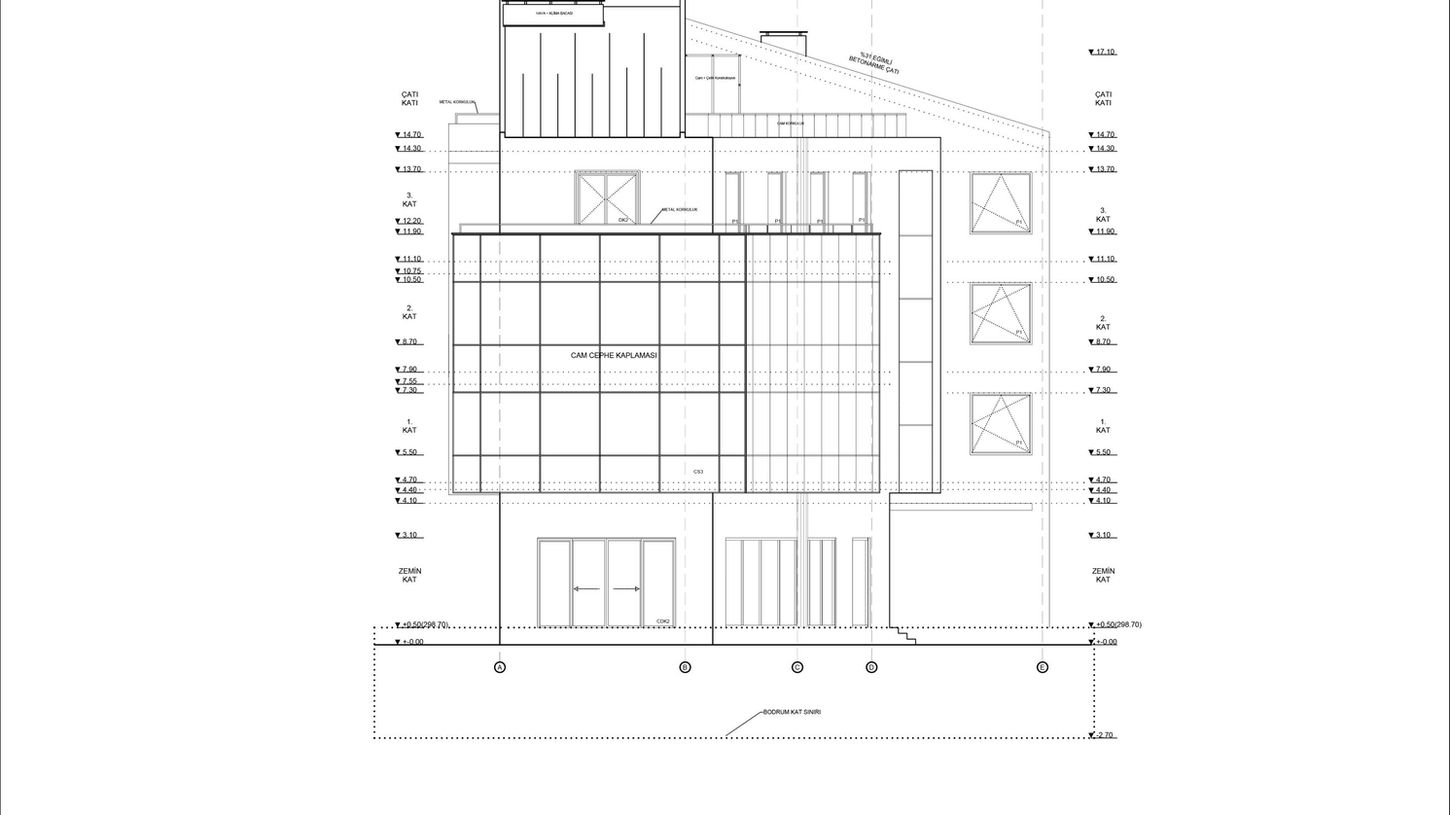
The office building designed by O&B Architecture is located in Bahçeyaka Neighborhood, Döşemealtı district of Antalya, on parcel 6 of block 456. The structure consists of 1 basement floor, 1 ground floor, 3 typical floors, and 1 roof floor, aiming to meet the demand for workspaces due to the increasing population density in the district.
The south and east facades of the building have been designated as the main facades due to their connection to road networks and the park located to the east. Spaces where users are expected to spend time have been oriented towards these facades. On the west side, an existing building situated between the plot and the main road obstructs visibility from the main road. To address this, the south facade of the building has been differentiated to enhance its visibility.
The design has been developed with the concept of offering flexible spaces suitable for various functions rather than catering to a specific business type. Wet areas and the building core have been positioned to allow free partitioning of the spaces. The building is designed to accommodate diverse functions, such as clinics, training centers, schools, and offices.
I played an active role in all phases of the project, from the design stage to the municipal approval process. During this time, I prepared the necessary technical and 3D drawings.
Yalin Plaza
The office building designed by O&B Architecture is located in Bahçeyaka Neighborhood, Döşemealtı district of Antalya, on parcel 6 of block 456. The structure consists of 1 basement floor, 1 ground floor, 3 typical floors, and 1 roof floor, aiming to meet the demand for workspaces due to the increasing population density in the district.
The south and east facades of the building have been designated as the main facades due to their connection to road networks and the park located to the east. Spaces where users are expected to spend time have been oriented towards these facades. On the west side, an existing building situated between the plot and the main road obstructs visibility from the main road. To address this, the south facade of the building has been differentiated to enhance its visibility.
The design has been developed with the concept of offering flexible spaces suitable for various functions rather than catering to a specific business type. Wet areas and the building core have been positioned to allow free partitioning of the spaces. The building is designed to accommodate diverse functions, such as clinics, training centers, schools, and offices.
I played an active role in all phases of the project, from the design stage to the municipal approval process. During this time, I prepared the necessary technical and 3D drawings.
Software used:
Revit+Autocad+Lumion+Photoshop
bottom of page


























