top of page
Location
Antalya
Type
Interior
Built Area
45 M²
Date
07/2022
Okumus Office Room
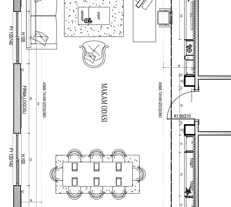
The interior design project, co-designed with architect İbrahim Halil Yel, was created for Mr. Yaşar, the owner of Okumuş Company in Antalya. Before starting the design, the client’s needs were identified, and measurements of the existing space were taken. The client expressed a desire to make the existing space more functional, specifically requiring storage, meeting, and working areas, and requested that the design reflect these requirements.
As a preliminary step, the space was analyzed, and design alternatives were evaluated with the client. Based on functionality, the 45 m² area was divided into sections for a workspace, guest reception, and meeting area, each furnished appropriately for its intended use. Based on feedback from the critiques, the project was finalized. To aid in making clearer design decisions and presenting the project to the client, I created models and visualizations.
Okumus Office Room
The interior design project, co-designed with architect İbrahim Halil Yel, was created for Mr. Yaşar, the owner of Okumuş Company in Antalya. Before starting the design, the client’s needs were identified, and measurements of the existing space were taken. The client expressed a desire to make the existing space more functional, specifically requiring storage, meeting, and working areas, and requested that the design reflect these requirements.
As a preliminary step, the space was analyzed, and design alternatives were evaluated with the client. Based on functionality, the 45 m² area was divided into sections for a workspace, guest reception, and meeting area, each furnished appropriately for its intended use. Based on feedback from the critiques, the project was finalized. To aid in making clearer design decisions and presenting the project to the client, I created models and visualizations.
Software used:
Revit+Autocad+Lumion+Photoshop
bottom of page




















